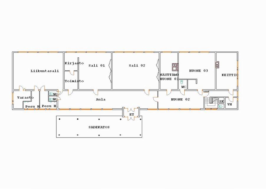
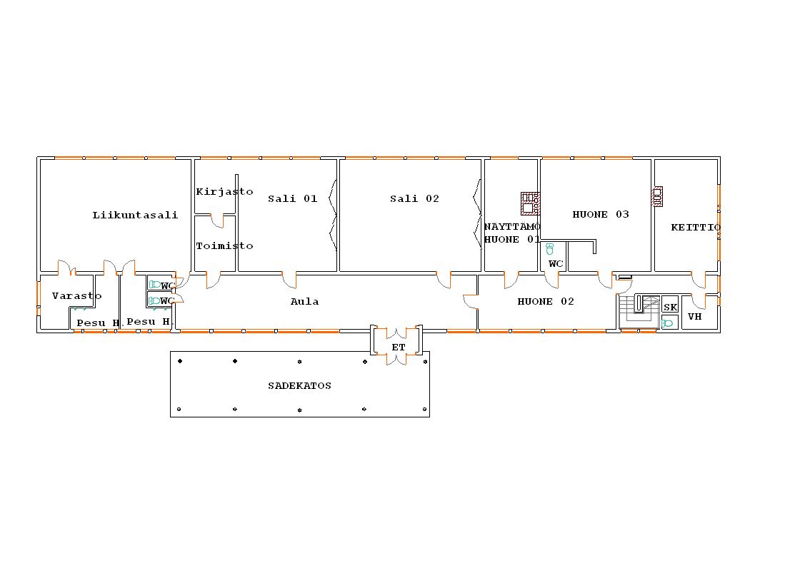
Haavistonlahden Toimintakeskus - pohjapiirrokset - pohjat

TAKAISIN

Valokuvia



Päärakennus & rivitalo pohjapiirrokset:

Päärakennus:

Alakerta:

Rivitalo: